Добро пожаловать на http://vipplan.ru

Випплан Саянск - это тысячи проектов домов в нашем каталоге!

Вы всегда сможете найти для себя проект дома вашей мечты! Даже если этого не случилось, мы готовы в любую минуту предложить проект индивидуального дома.

Забыли пароль?
Вы еще не регистрировались?

Перейдите по ссылке ниже на страницу регистрации.

Регистрация...

Внимание!!!

В проектную документацию могут быть внесены изменения любой сложности, в соответствии в Вашими пожеланиями!

Полезные статьи

Где копать колодец?

Водоснабжение за городом - Саянск всегда было проблематичным. При отсутствии центрального водоснабжения остается только один выход – выкопать колодец. Водоносный пласт есть не везде. Как же определить, где копать колодец?...

Сборные фундаменты

В наше время все большую популярность при строительстве дома приобретают сборные бетонные и железобетонные блоки. Их использование значительно сокращает время работ и снижает их трудоемкость....

Проекты домов и коттеджей > Каталог проектов домов > Дом с мансардой, гаражом, террасой и балконами - 1 секция Vg968

Дом с мансардой, гаражом, террасой и балконами - 1 секция Vg968

Дом с мансардой, гаражом, террасой и балконами - 1 секция
Зарегистрируйтесь

Проект № Vg968


Техническое описание
Общая площадь: 134.96 м2
Жилая площадь: 66.08 м2
Высота здания: 8.67 м
Размеры дома: 8.36м×12.79м
Кол-во комнат: 4
Цокольный этаж: нет
Гараж: нет
Мансарда: есть

Kонструкция
Фундамент: буронабивной (свайно-ростверковый)
Перекрытия: деревянные балки
Материал стен: Каркас

Архитектурный раздел
Конструктивный раздел
АР+КР - 52 000 (Со скидкой 20%)
Проект индивидуального двухсекционного дачного дома с мансардой с размерами здания 8,36x25,58 м. Наружная отделка здания - сайдинг (стеновой, цокольный) Фундамент - буронабивной (свайно-ростверковый). Ростверк - монолитный, ж/б. Наружные стены - деревянный каркас. Между стойками каркаса заложить тепло-шумоизоляционные материалы, предусмотреть пароизоляцию. Состав стены: Доска, OSB-3 с двух сторон, снаружи обшивка сайдингом. Внутренние стены, перегородки - доска, декоративная отделка с двух сторон (по дизайн-проекту). Между стойками каркаса заложить тепло-шумоизоляционные материалы, пароизоляцию. Пол первого этажа - пол по грунту. Межэтажное перекрытие: по деревянным балкам с пароизоляцией и использованием тепло-шумоизоляционных материалов в межбалочном пространстве. Черновой пол: OSB-3. Крыша - многоскатная. Материал кровли - металлочерепица. Окна - металлопластиковые, выполненные по индивидуальному заказу. Лестница выполняется по индивидуальному заказу.
Генплан застройки участка / Паспорт проекта 7000 руб / 10000 руб
Инженерный раздел (полный) 67500 руб
Смета на строительство 33750 руб
Теплотехнический расчет материалов стен Бесплатно
Стоимость проекта со незначительнми изменениями 61600 руб
Стоимость проекта со средними изменениями* 71800 руб
Стоимость проекта со значительными изменениями** 74500 руб

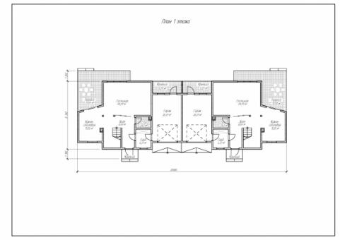
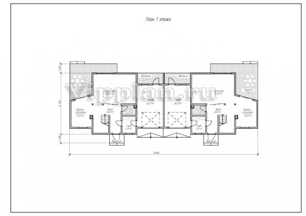
План первого этажа


Гостиная - 23,27 кв м
Крыльцо - 5,27 кв м
Гараж - 20,21 кв м
Гардероб - 4,21 кв м
С/у - 2,43 кв м
Холл - 8,89 кв м
Кухня - 11,25 кв м
Терраса - 17,97 кв м

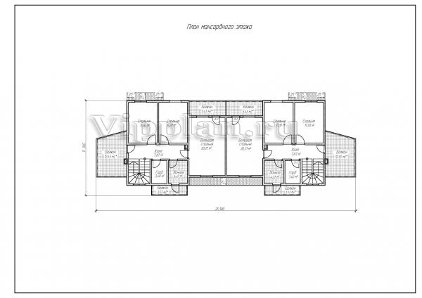
План мансардного этажа


Спальня - 20,21 кв м
Спальня - 11,30 кв м
Спальня - 11,30 кв м
Холл - 7,87 кв м
Гардероб - 3,40 кв м
Ванная - 4,21 кв м
Балкон - 3,53 кв м
Балкон - 12,45 кв м
Балкон - 5,43 кв м
Дом с мансардой, гаражом, террасой и балконами - 1 секция Дом с мансардой, гаражом, террасой и балконами - 1 секция Дом с мансардой, гаражом, террасой и балконами - 1 секция Дом с мансардой, гаражом, террасой и балконами - 1 секция
Внесение изменений и привязка к участку строительства

В любой из проектов от компании VIPplan - Саянск по вашему желанию могут быть внесены изменения в материалы стен, материалы наружной отделки дома, а также будет произведена адаптация проекта под конкретный регион строительства (с учетом грунтов региона, геологических особенностей вашего участка и местных климатических условий) - БЕСПЛАТНО !!! (кроме проектов со скидкой и проектов наших партнеров).

Любой из проектов, размещенных на сайте sayansk.vipplan.ru мы можем выполнить из требуемых вам строительных материалов: ячеистый бетон (газобетон, пеноблок), керамоблок, кирпич, шлакоблок, бетонный блок, дерево (брус, клееный брус), каркасная технология (деревянный каркас, металлокаркас (ЛСТК)).

Фасад дома и его наружную отделку так же возможно выполнить с применением различных облицовочных материалов: структурной штукатурки, (с утеплителем и без), сайдингом (пластиковый или металлосайдинг), фиброплитами, кирпича.

 
6 Избранные
проекты

Доставка проектов по России: Москва (Московская область), Санкт-Петербург (Ленинградская область), Краснодар, Ростов-на-Дону, Ставрополь, Сочи, Волгоград, Новосибирск, Белгород, Брянск, Воронеж, Саратов, Хабаровск, Астрахань, Нальчик, Владикавказ, Екатеринбург, Тюмень, Самара, Нижний Новгород, Казань, Пермь, Уфа, Челябинск, Красноярск, Ханты-Мансийск, Иркутск, Курган, Оренбург, Омск, Томск, Барнаул, Новокузнецк, Кемерово, Абакан, Чита, Якутск, Южно-Сахалинск, Петропавловск-Камчатский и страны ближнего зарубежья: Белоруссия, Украина, Казахстан