Добро пожаловать на http://vipplan.ru

Випплан Саянск - это тысячи проектов домов в нашем каталоге!

Вы всегда сможете найти для себя проект дома вашей мечты! Даже если этого не случилось, мы готовы в любую минуту предложить проект индивидуального дома.

Забыли пароль?
Вы еще не регистрировались?

Перейдите по ссылке ниже на страницу регистрации.

Регистрация...

Внимание!!!

В проектную документацию могут быть внесены изменения любой сложности, в соответствии в Вашими пожеланиями!

Полезные статьи

Фундамент под гараж

Обычно фундаменты под гараж делаются из бетонного раствора и заливаются, как монолит. Гаражные фундаменты так же можно укладывать из бетона с применением бутового камня. Такие фундаменты тоже считаются монолитными. В этом случае происходит экономия бетона....

Проект дома

Строительство дома начинается с подготовительного этапа, основной частью которого является проект. Разработка дизайнерского проекта сопровождается оформлением документов после выбора участка....

Проекты домов и коттеджей > Каталог проектов домов > Двухэтажный дом с гаражом на 2 машины, террасой и балконом Vg2451

Двухэтажный дом с гаражом на 2 машины, террасой и балконом Vg2451

Двухэтажный дом с гаражом на 2 машины, террасой и балконом
Зарегистрируйтесь

Проект № Vg2451


Техническое описание
Общая площадь: 175.57 м2
Жилая площадь: 77.69 м2
Высота здания: 8.65 м
Размеры дома: 14.61м×13.51м
Кол-во комнат: 5
Цокольный этаж: нет
Гараж: нет
Мансарда: нет

Kонструкция
Фундамент: ленточный монолитный ж/б
Перекрытия: пол по грунту, сборные ж/б плиты, деревянные балки
Материал стен: Газобетон

Архитектурный раздел
Конструктивный раздел
АР+КР - 60 000 (Со скидкой 20%)
Модель проекта индивидуального двухэтажного жилого дома с с размерами здания 14,61х13,51 м. Наружная отделка здания – штукатурка и деревянные панели. Фундамент – ленточный монолитный ж/б. Наружные стены – пароизоляция, газобетонный блок, пенополистирол, штукатурка или деревянные панели. Внутренние стены и перегородки – газобетонный блок. Пол 1 этажа - пол по грунту. Перекрытие второго этажа - сборные ж/б плиты. Чердачное перекрытие - деревянные балки. Крыша многоскатная. Кровля – металлочерепица. Окна — металлопластиковые.
Генплан застройки участка / Паспорт проекта 7000 руб / 10000 руб
Инженерный раздел (полный) 88000 руб
Смета на строительство 44000 руб
Теплотехнический расчет материалов стен Бесплатно
Стоимость проекта со незначительнми изменениями 70600 руб
Стоимость проекта со средними изменениями* 83800 руб
Стоимость проекта со значительными изменениями** 87300 руб

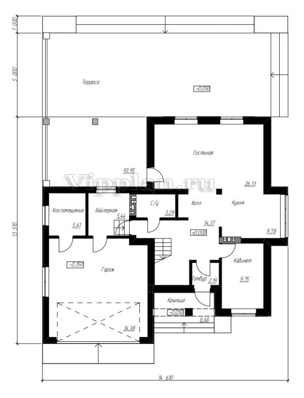
План первого этажа


Тамбур — 2,19 м2
Холл — 14,37 м2
Кухня — 9,78 м2
Гостиная — 26,13 м2
С/у — 3,29 м2
Бойлерная — 5,44 м2
Подсобка — 5,61 м2
Гараж — 34,38 м2

Двухэтажный дом с гаражом на 2 машины, террасой и балконом

Двухэтажный дом с гаражом на 2 машины, террасой и балконом

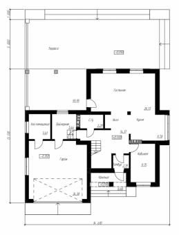
План второго этажа


Холл — 8,6 м2
Спальня — 12,31 м2
Спальня — 12,35 м2
С/у — 8,14 м2
Спальня — 17,15 м2
Гардероб — 5,21 м2
Двухэтажный дом с гаражом на 2 машины, террасой и балконом Двухэтажный дом с гаражом на 2 машины, террасой и балконом Двухэтажный дом с гаражом на 2 машины, террасой и балконом Двухэтажный дом с гаражом на 2 машины, террасой и балконом

Модификации проектов

Внесение изменений и привязка к участку строительства

В любой из проектов от компании VIPplan - Саянск по вашему желанию могут быть внесены изменения в материалы стен, материалы наружной отделки дома, а также будет произведена адаптация проекта под конкретный регион строительства (с учетом грунтов региона, геологических особенностей вашего участка и местных климатических условий) - БЕСПЛАТНО !!! (кроме проектов со скидкой и проектов наших партнеров).

Любой из проектов, размещенных на сайте sayansk.vipplan.ru мы можем выполнить из требуемых вам строительных материалов: ячеистый бетон (газобетон, пеноблок), керамоблок, кирпич, шлакоблок, бетонный блок, дерево (брус, клееный брус), каркасная технология (деревянный каркас, металлокаркас (ЛСТК)).

Фасад дома и его наружную отделку так же возможно выполнить с применением различных облицовочных материалов: структурной штукатурки, (с утеплителем и без), сайдингом (пластиковый или металлосайдинг), фиброплитами, кирпича.

 
6 Избранные
проекты

Доставка проектов по России: Москва (Московская область), Санкт-Петербург (Ленинградская область), Краснодар, Ростов-на-Дону, Ставрополь, Сочи, Волгоград, Новосибирск, Белгород, Брянск, Воронеж, Саратов, Хабаровск, Астрахань, Нальчик, Владикавказ, Екатеринбург, Тюмень, Самара, Нижний Новгород, Казань, Пермь, Уфа, Челябинск, Красноярск, Ханты-Мансийск, Иркутск, Курган, Оренбург, Омск, Томск, Барнаул, Новокузнецк, Кемерово, Абакан, Чита, Якутск, Южно-Сахалинск, Петропавловск-Камчатский и страны ближнего зарубежья: Белоруссия, Украина, Казахстан