Добро пожаловать на http://vipplan.ru

Випплан Саянск - это тысячи проектов домов в нашем каталоге!

Вы всегда сможете найти для себя проект дома вашей мечты! Даже если этого не случилось, мы готовы в любую минуту предложить проект индивидуального дома.

Забыли пароль?
Вы еще не регистрировались?

Перейдите по ссылке ниже на страницу регистрации.

Регистрация...

Внимание!!!

В проектную документацию могут быть внесены изменения любой сложности, в соответствии в Вашими пожеланиями!

Полезные статьи

Свайно-ростверковый, буронабивной фундамент

Для объединения свай в общий фундамент устанавливают бетонные ростверки (железобетонные плиты). Устройство ростверка зависит от расположения, вида свай и конструкции здания. Ростверки могут быть монолитными, сборными или сборно-монолитными, также возможны безростверковые решения. ...

Перекрытия в доме

Перекрытия – одно из важнейших составляющих строящегося дома. Это горизонтальная внутренняя защитная конструкция, разделяющая по уровню смежные помещения дома. По назначению выделяют подвальные, межэтажные и чердачные перекрытия. При проектировании домов и зданий различного назначения, требования к межэтажным перекрытиям определяются их местоположением и функциями разделяемых помещений: надподвальные, межэтажные, чердачные и т.д....

Проекты домов и коттеджей > Каталог проектов домов > Удобный коттедж с мансардой Vg2228

Удобный коттедж с мансардой Vg2228

Удобный коттедж с мансардой
Зарегистрируйтесь

Проект № Vg2228


Техническое описание
Общая площадь: 174.47 м2
Жилая площадь: 86.17 м2
Высота здания: 8.36 м
Размеры дома: 15.04м×9.34м
Цокольный этаж: нет
Гараж: нет
Мансарда: есть

Kонструкция
Фундамент: Ленточный
Перекрытия: Деревянные балки
Материал стен: Бетонные блоки

Архитектурный раздел
Конструктивный раздел
АР+КР - 56 000 (Со скидкой 20%)
Проект индивидуального одноэтажного жилого дома с мансардой с размерами здания 15,04 x 9,34м. Наружная отделка здания — клинкерная плитка. Цоколь -отделка клинкерной плиткой. Фундамент под домом- ленточный монолитный, ж/б. Фундамент под крыльцами и террасой - стена в грунте ("щелевой"), монолитный, ж/б. Наружные стены дома: газобетонные блоки, экструдированный пенополистирол, фасадная штукатурка. Внутренние стены: - газобетонные блоки. Перегородки: - ГКЛ на металлич.каркасе с использованием теплошумоизоляционных материалов в межкаркасном пространстве. Пол первого этажа - пол по грунту. Пол мансардного этажа - по деревянным балкам с использованием теплошумоизоляционных материалов типа "URSA" в межбалочном пространстве. Потолок мансардного этажа - по затяжкам стропильной системы. Крыша скатная. Покрытие - металлочерепица. Перемычки - монолитные и сварные из профиля проката. Окна - металлопластиковые, выполненные по индивидуальному заказу. Лестница - деревянная, выполняется по индивидуальному заказу.
Генплан застройки участка / Паспорт проекта 7000 руб / 10000 руб
Инженерный раздел (полный) 87000 руб
Смета на строительство 43500 руб
Теплотехнический расчет материалов стен Бесплатно
Стоимость проекта со незначительнми изменениями 65650 руб
Стоимость проекта со средними изменениями* 78700 руб
Стоимость проекта со значительными изменениями** 82200 руб

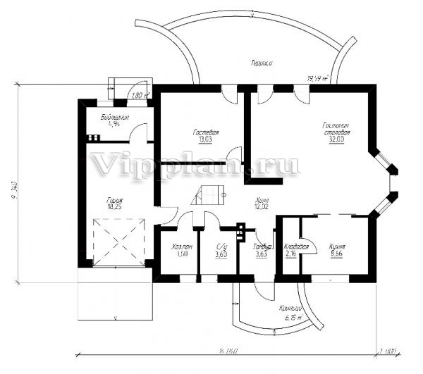
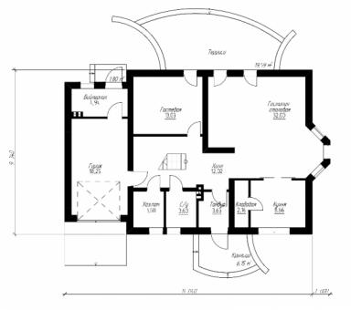
План первого этажа


Тамбур — 3,63 м2
Холл — 12,02 м2
Гостиная — 32,00 м2
Кухня — 8,66 м2
Кладовая — 8,66 м2
С/у — 3,60 м2
Хоз.пом. - 3,60 м2
Гостевая — 13,03 м2
Бойлерная — 4,94 м2
Гараж — 18,25 м2

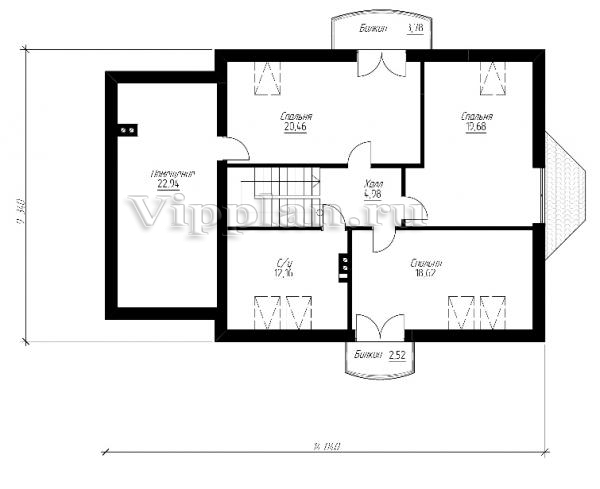
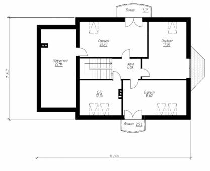
План мансардного этажа


Холл — 4,98 м2
Спальня — 20,46 м2
Спальня — 19,68 м2
Спальня — 18,62 м2
С/у — 12,16 м2
Помещение — 22,94 м2
Удобный коттедж с мансардой Удобный коттедж с мансардой Удобный коттедж с мансардой Удобный коттедж с мансардой

Модификации проектов

Внесение изменений и привязка к участку строительства

В любой из проектов от компании VIPplan - Саянск по вашему желанию могут быть внесены изменения в материалы стен, материалы наружной отделки дома, а также будет произведена адаптация проекта под конкретный регион строительства (с учетом грунтов региона, геологических особенностей вашего участка и местных климатических условий) - БЕСПЛАТНО !!! (кроме проектов со скидкой и проектов наших партнеров).

Любой из проектов, размещенных на сайте sayansk.vipplan.ru мы можем выполнить из требуемых вам строительных материалов: ячеистый бетон (газобетон, пеноблок), керамоблок, кирпич, шлакоблок, бетонный блок, дерево (брус, клееный брус), каркасная технология (деревянный каркас, металлокаркас (ЛСТК)).

Фасад дома и его наружную отделку так же возможно выполнить с применением различных облицовочных материалов: структурной штукатурки, (с утеплителем и без), сайдингом (пластиковый или металлосайдинг), фиброплитами, кирпича.

 
6 Избранные
проекты

Доставка проектов по России: Москва (Московская область), Санкт-Петербург (Ленинградская область), Краснодар, Ростов-на-Дону, Ставрополь, Сочи, Волгоград, Новосибирск, Белгород, Брянск, Воронеж, Саратов, Хабаровск, Астрахань, Нальчик, Владикавказ, Екатеринбург, Тюмень, Самара, Нижний Новгород, Казань, Пермь, Уфа, Челябинск, Красноярск, Ханты-Мансийск, Иркутск, Курган, Оренбург, Омск, Томск, Барнаул, Новокузнецк, Кемерово, Абакан, Чита, Якутск, Южно-Сахалинск, Петропавловск-Камчатский и страны ближнего зарубежья: Белоруссия, Украина, Казахстан